
|
Наименование
|
Норма для типа | ||||||
|
ПБА100-
|
ПБА100-
|
ПБА100-
|
ПБА100-
|
ПБА150-
|
ПБА150-
|
ПБА150-
| |
|
Подача, м 3/ч |
112 |
140 |
170 |
195 |
300 |
350 |
400 |
|
Напор, м |
17 |
27,5 |
40 |
52 |
30 |
40 |
52 |
|
Допустимый кавитационный запас, м, не более |
2,2 |
3,1 |
4,5 |
4,5 |
3,2 |
4,3 |
4,5 |
|
Рабочаяя область подач, м 3/ч |
90-130 |
110-170 |
140-200 |
160-230 |
240-360 |
280-420 |
320-480 |
|
Частота вращения, об/мин |
965 |
1200 |
1450 |
1650 |
830 |
965 |
1100 |
|
КПД, %, не менее |
59 |
60 |
60 |
60 |
64 |
64 |
64 |
|
Плотность перекачиваемой смеси, кг/м 3 |
1610 |
1620 |
1680 |
1840 |
1840 |
1740 |
1700 |
|
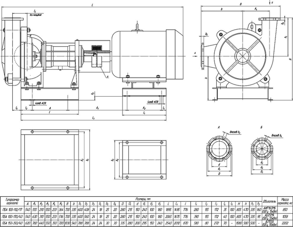
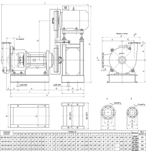
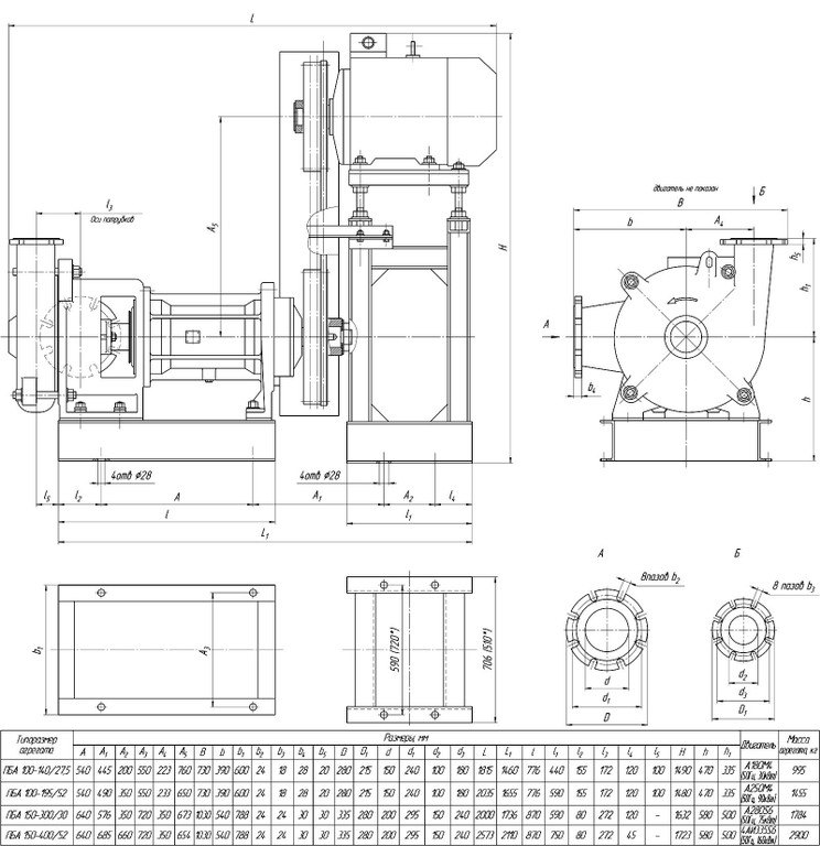
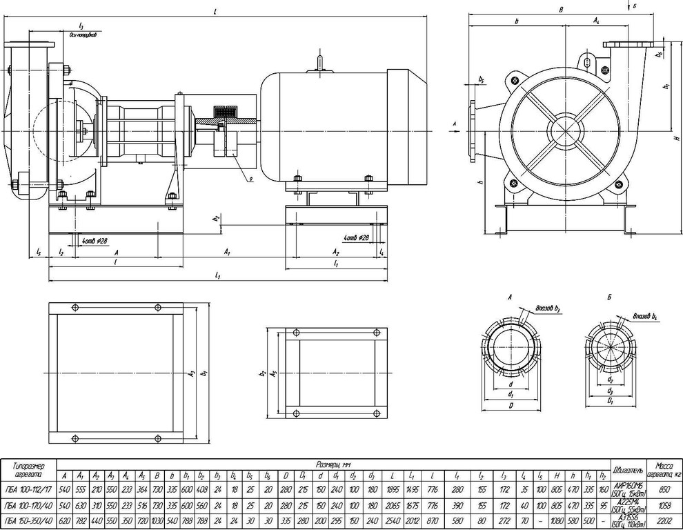
Типа передачи |
муфта |
клиноременная |
муфта |
клиноременная |
клиноременная |
муфта |
клиноременная |
|
Масса насоса, кг |
575 |
972 | |||||
|
№ |
Наименование детали |
|
1 |
Отвод |
|
2 |
Диск |
|
3 |
Колесо рабочее |
У вас остались вопросы?
Заполните форму и наш менеджер Вас проконсультирует
