
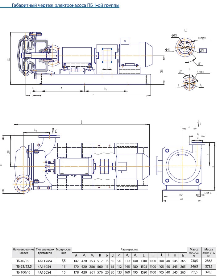
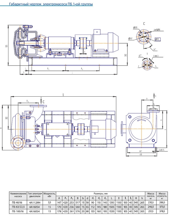
| Подача | 40 м³/ч |
| Напор | 16 м |
| Рабочая зона по подаче | 24-46 кВт |
| Кавитационный запас | 3,5 |
| КПД | 50% |
| Мощность приводного эл. дв. | 5,5 кВт |
| Частота вращения | 1500 |
| Максимальный уровень погружения (м) | -- |
| Средний размер твёрдых частиц | -- |
| Масса насоса | 230,5 |
У вас остались вопросы?
Заполните форму и наш менеджер Вас проконсультирует
