
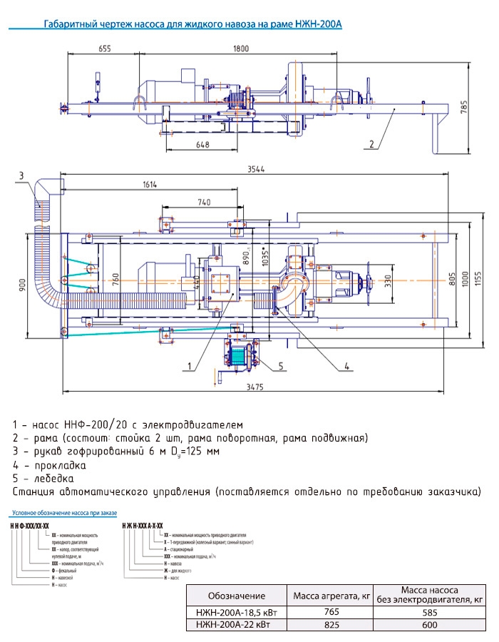
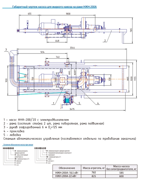
| Потребляемая мощность | 18 кВт |
| Частота вращения | 1000 об/мин |
| Потребляемый ток | -- |
| КПД | 40 % |
| Масса не более | 600 кг |
| Подача | 200 м³/ч |
| Напор | 20 м |
| Подпор | -- |
| Высота | 3545 мм |
| Максимальный поперечный размер | 1155 мм |
| Глубина погружения М(не менее) | -- |
| Напряжение, В | 380 |
| Условный проход шланга | -- |
| Присоединительный диаметр для патрубка отверстия | -- |
| Размер отверстий для резьб | -- |
| Количество отверстий | -- |
У вас остались вопросы?
Заполните форму и наш менеджер Вас проконсультирует
